


















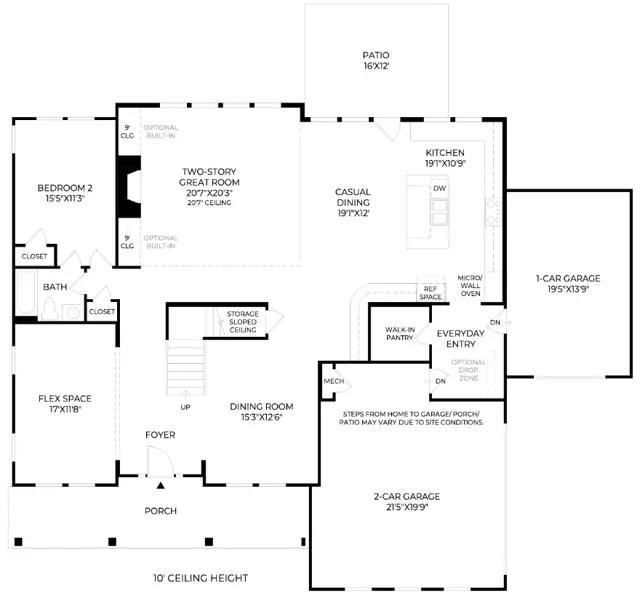
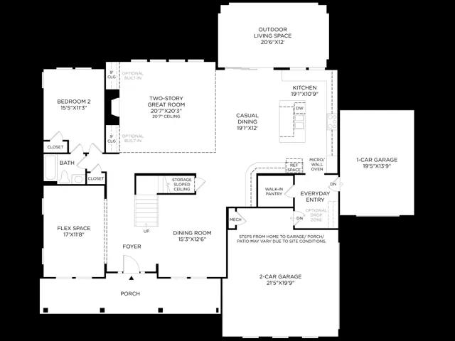
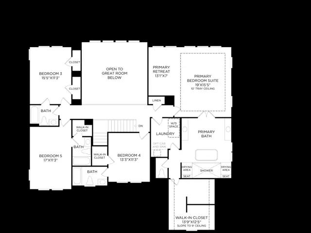
The Rosalynn blends luxury and tranquility across a thoughtful two-story floor plan. A welcoming foyer opens to a dramatic two-story great room with a cozy fireplace, which flows into the casual dining area and gourmet kitchen. The kitchen features a center island, walk-in pantry, and generous counter space, while a nearby patio extends the living area outdoors. A formal dining room offers a refined space for entertaining, and a first-floor secondary bedroom with access to a hall bath is ideal for guests. Upstairs, the luxurious primary suite includes a tray ceiling, a primary retreat, a spacious walk-in closet, and a spa-inspired bathroom with dual vanities, a soaking tub, luxe shower with seat, private water closet, and direct access to the central laundry. Two secondary bedrooms with walk-in closets share a full bath with dual vanities, while a third secondary...
Stay informed with Livabl updates on new community details and available inventory.