





































Get additional information including price lists and floor plans.
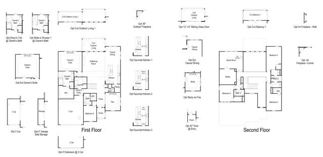
The Carnelian floor plan design has the perfect blend of stately and enchanting looks with all the modern conveniences homeowners look for in a new home. The open-concept common area in Carnelian speaks to the modern desire for staying connected. The kitchen features an island with breakfast bar and a roomy walk-in pantry. Standing at the islands double sink, the cook can look out over the family room, where you can add a cozy fireplace if you like. Adjacent to the kitchen stands the casual dining nook. Down the foyer is an open flex room to use as you desire. Leave it open as a den or formal dining room or enclose the space to create an optional study. The expansive owners suite is on the ground floor, tucked to one side of the home for extra privacy. Double doors in the bedroom open to the bath which includes dual sinks, large shower, garden tub for long soaks ...
Stay informed with Livabl updates on new community details and available inventory.