






































Get additional information including price lists and floor plans.
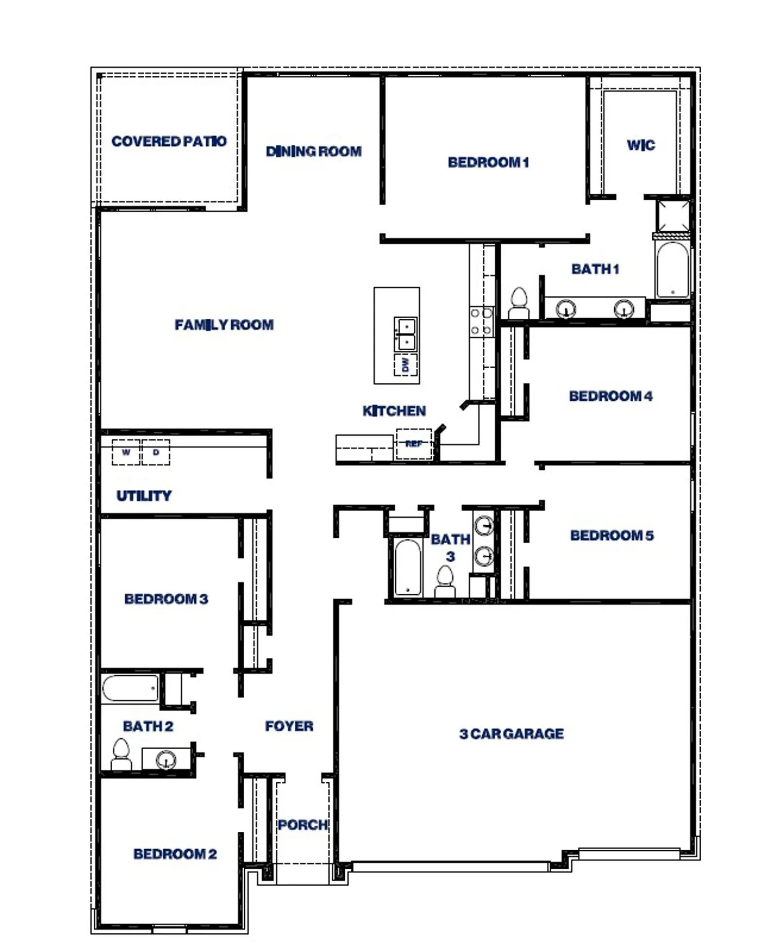
Welcome to the Mavrerick Plan, located in River Ranch! This single-story house has three bedrooms, two bathrooms, and a two-car garage. It spans 2,439 square feet and will be a lovely home for you! Entering this home, you will notice two secondary bedrooms on one side of the foyer, each with access to a secondary bathroom. The secondary bathroom is equipped with a tub/shower combo and vinyl flooring for your convenience. Moving further along in the foyer, you will notice another secondary bathroom and two secondary bedrooms. The secondary bathroom has dual sink, vinyl flooring, and a tub/shower combo and the secondary bedroom has a large bright window that allows natural light to fill the room. Venturing to the end of the foyer is the utility room, which has vinyl flooring, space for a washer and dryer, and access to the primary bedroom. The foyer ends where t...
Stay informed with Livabl updates on new community details and available inventory.