


















































Images coming soon
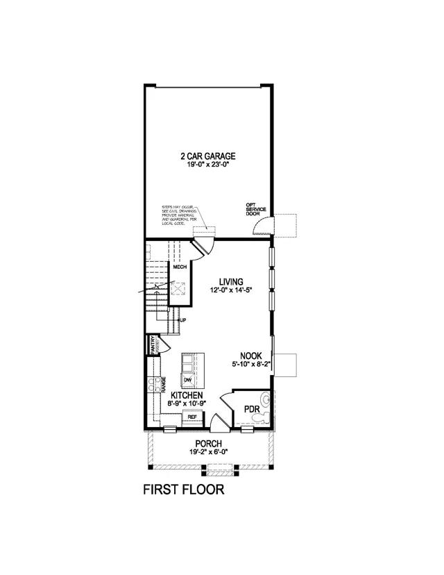
Welcome home to the Muirfield floor plan, located in Denver, Colorado in the Arcadia new home community. The Muirfield is a 2-story home featuring 3-bedrooms, 2.5-bathrooms, and 1,500 sq.ft of living space. As you enter from the covered front porch you will be welcomed by the beautiful kitchen that overlooks the dining and living area. The spacious kitchen features premium cabinetry, stainless steel appliances, a pantry, and an expansive island perfect for food prepping, dining or entertaining. The dining nook seamlessly flows from the kitchen providing optimal functionality. The living room located near the rear of the home and next to the 2-car garage is spacious allowing for a variety of set-ups and ample seating. An open loft space sits at the top of the stairs, providing you additional space for all of your needs, whether it be a second living area, ga...
Stay informed with Livabl updates on new community details and available inventory.