



















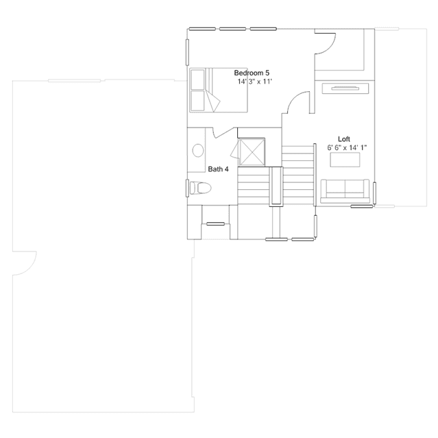
A convenient and contemporary open floorplan where the family room, dining and kitchen effortlessly flow into one another is found on the first floor, with a secondary bedroom thats perfect for overnight guests or a home office. Three more bedrooms can be found on the second floor, including the luxe owners suite, while a fifth bedroom and loft occupy the top level.