

















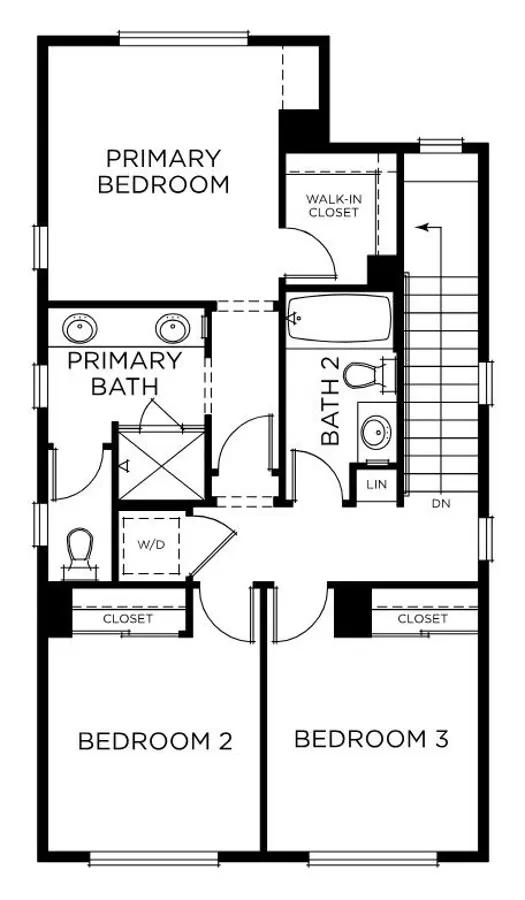
Welcome to this exquisite three-level home offering a perfect blend of functionality and luxury. The first floor features a spacious 2-car garage, a dedicated study/office, and a cozy entryway leading to the second floor. On the second floor, youll find an expansive great room that opens to a deck, a modern kitchen with an island and pantry, a dining area, and a convenient powder room. The third floor boasts a comfortable primary bedroom with an en-suite bath and walk-in closet, two additional bedrooms with ample closet space, a second full bath, and a laundry area. Ideal for modern living, this home combines thoughtful design with stylish finishes. Detached home with 2-car garage Office space on first floor Open living floorplan on second floor with coverage deck
Stay informed with Livabl updates on new community details and available inventory.