




















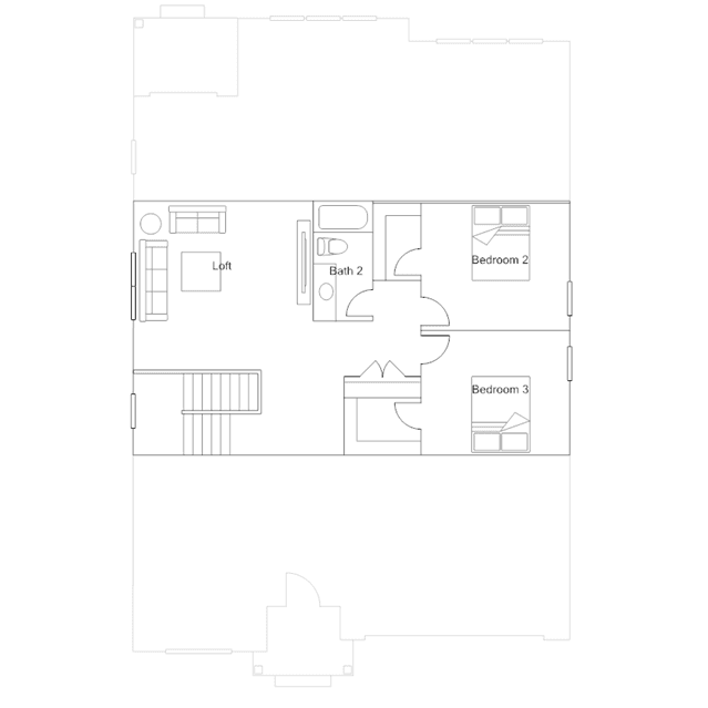
This new two-story home is designed for ease and comfort. The first floors popular features include a spacious owners suite, versatile flex space and an open layout among the family room, kitchen and breakfast room. Upstairs are a loft that adds shared living space and two secondary bedrooms that both have walk-in closets.