






















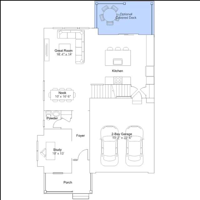
This two-story home features a flexible study adjacent to the open-concept layout that brings together the main living areas of the home. The second level offers room for everyone with four bedrooms including the lavish owners suite with spa-like bathroom.
Stay informed with Livabl updates on new community details and available inventory.