









































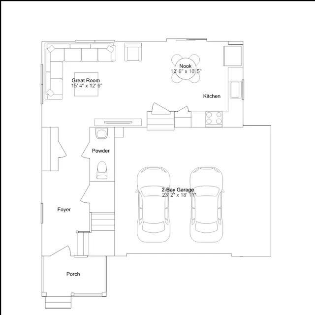
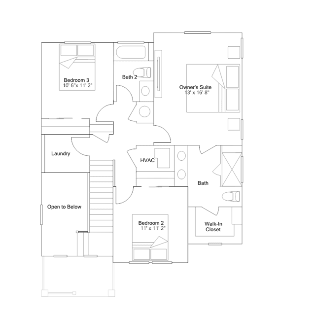
The Great Room, kitchen and nook share a convenient and contemporary open floorplan in this two-story home, allowing for seamless transition between spaces on the first level. Upstairs, a versatile loft is surrounded by three bedrooms. Among them, the owners suite features a restful bedroom, a spa-like bathroom and a generous walk-in closet.