























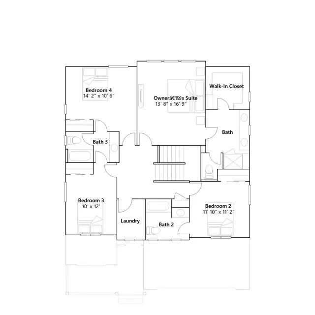
The first level of this two-story home is host to a spacious open floorplan where the Great Room, kitchen and nook share a footprint, making multitasking and entertaining simple. Homebuyers have the option to add a covered deck. A study off the foyer is ideal for working from home or getting paperwork done. All four bedrooms occupy the second floor, including the luxe owners suite with a restful bedroom, a spa-inspired en-suite bathroom and a walk-in closet.
Stay informed with Livabl updates on new community details and available inventory.