





















Images coming soon
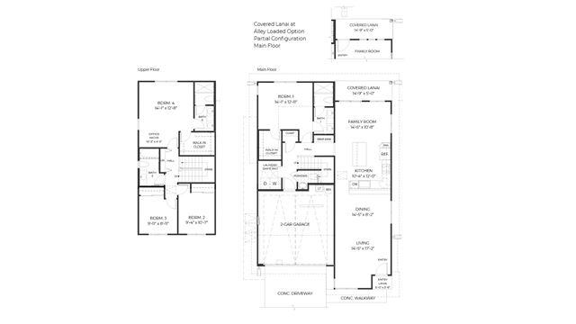
The Kualua Suite is a popular 4 bedroom, 3.5 bath floorplan with double primary suites, and total of 2,000 sq. ft. of living space. Architecturally designed for the multi-generational family, the first floor has a spacious design including the living room, dining area, kitchen, and family room. The kitchen is centrally located with a sit-down quartz countertop island, vinyl plank flooring in the living and kitchen areas, a Kohler Task single basin kitchen sink, and the KitchenAid stainless steel kitchen appliance package including your range, oven, micro-hood, and a dishwasher. The drop zone area, with USB-C outlets, is well placed in the downstairs hallway, close to the powder room. The spacious primary suite on the first floor has a walk- in closet and bathroom with dual sinks and a step- in shower. On the upstairs level you will discover the second capacious p...