

























Images coming soon
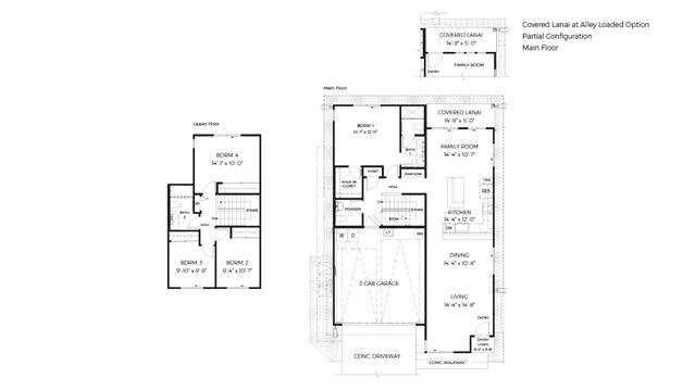
The Kualua floorplan offers 4 bedrooms, 2.5 baths, and 1,809 sq. ft. of living area. This home offers a spacious covered front lanai, perfect for gathering with loved ones. Upon arrival, this home welcomes you with a spacious living area featuring a vaulted ceiling that seamlessly transitions to the dining area, kitchen, and family room. Through the family room is the covered lanai at the rear of the home, optimal for those who enjoy relaxing or gathering outdoors. The modern kitchen is a central focal point, containing a large island and a raised bar peninsula, both of which offer additional seating for casual dining and get togethers. The kitchen is appointed with white soft-close cabinets, ample quartz counter space, stainless steel appliances including a range, oven, micro-hood, dishwasher, and a Kohler single basin sink. This plan includes a highly desired ...