
















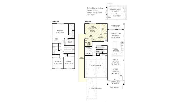
Orchard ADU: A Spacious and Modern Design The Orchard ADU configuration is a highly sought-after design that offers four bedrooms, 3.5 baths and a total of 1,996 sq ft of living space. This plan is comprised of two attached but separate dwellings, making it an ideal choice for families who want to live together yet maintain their privacy. The main house has three bedrooms and 2.5 bathrooms, with 1,657 sf of living space. The Accessory Dwelling Unit (ADU) has a separate entry to a spacious studio with a kitchenette and full bath, spanning 339 sf of living area. Upon entering the Orchard, you'll be greeted by an open and fluid living space that connects the living and dining areas, seamlessly flowing into the kitchen and family room, and finally landing on the outdoor rear covered lanai. The modern kitchen boasts a large island and a raised bar peninsula,...