




































































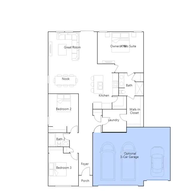
This charming single-story home includes an easily accessible open layout among the kitchen, dining area and Great Room perfect for hosting guests. The luxe owners suite is situated nearby, tucked to the back of the home for increased privacy, while two additional bedrooms sit near the foyer.
Stay informed with Livabl updates on new community details and available inventory.