hero-image-0
hero-image-1
hero-image-2
hero-image-3
hero-image-4

9338 Somerford Drive

By

Lennar

   |   

Marketplace Towns

Marketplace Towns
Sold
Sold
3
3
2
2
2,240
9338 Somerford Drive details
9338 Somerford Drive is now sold.
Check out available nearby homes below.

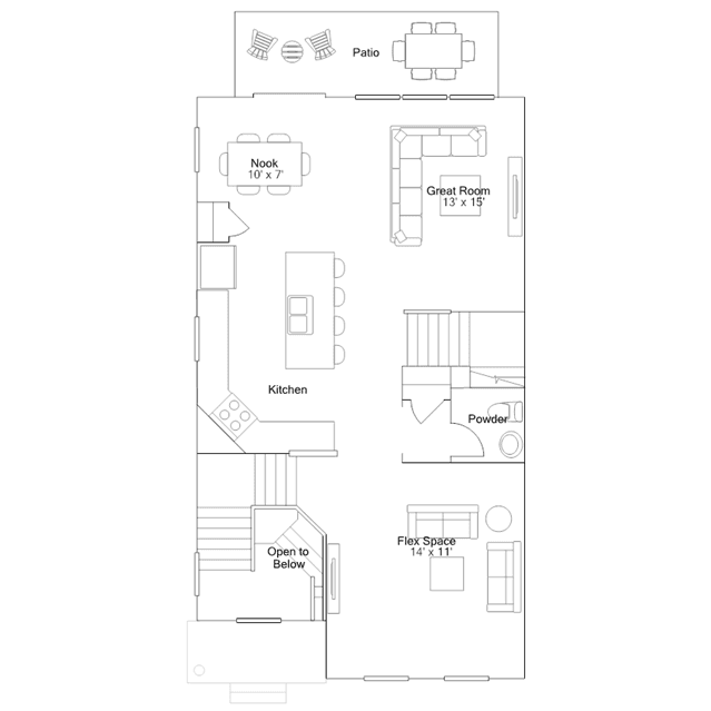
Floor plan

Sold
VIRTUAL TOUR

Talbot II

Marketplace Towns

This new three-story townhome design includes first-floor flex space plus a powder room. The second level features an open-plan layout among the kitchen, nook and Great Room, which has sliding-glass doors to the balcony. A flex room can be used in versatile ways. The third floor hosts a luxe owners suite and two secondary bedrooms.