

















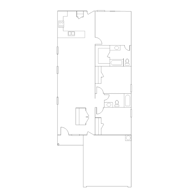
This single-story home has a classic layout with everything a growing family needs. The open living area includes a family room, dining area and modern kitchen which has a door to the backyard. Three bedrooms connect to the living area, including the owners suite, which has a private bathroom and walk-in closet.
Stay informed with Livabl updates on new community details and available inventory.