hero-image-0
hero-image-1
hero-image-2
hero-image-3
hero-image-4
hero-image-5
hero-image-6
hero-image-7
hero-image-8

7177 PONDEROSA PINE DR

By

Lennar

   |   

Pratt's Preserve

Pratt's Preserve
Sold
Sold
3
2
1,450
7177 PONDEROSA PINE DR details
7177 PONDEROSA PINE DR is now sold.
Check out available nearby homes below.

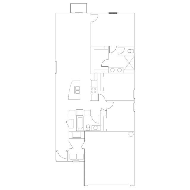
Floor plan

Sold
VIRTUAL TOUR

Annapolis

Pratt's Preserve

This new single-story home has a smart layout that prioritizes ease of living, while providing modern comfort. Down the foyer is a well-equipped kitchen that shares space with the dining room and Great Room, with an attached patio for outdoor living. On the opposite side of the home is the spacious owners suite and two secondary bedrooms arranged near a full-sized bathroom. Plus, a versatile two-car garage.