



































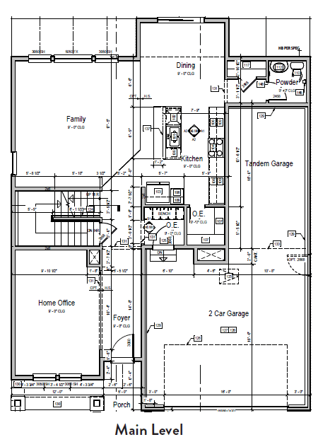
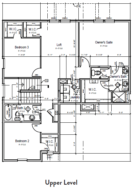
Welcome home to the Balsam! This spacious 2-story home has a wonderful tandem garage (perfect for additional parking, or lots of storage). There is also a home office on the main level, as well as your open concept family room, dining room, grand kitchen, and half bathroom for guests to use. Upstairs there are 2 secondary bedrooms with walk-in closets, a secondary bathroom, laundry room, and your primary bedroom with attached 4-piece bathroom and walk-in closet. You wont want to miss seeing this home! Call us today to learn more. Prices, plans, and terms are effective on the date of publication and subject to change without notice. Depictions of homes or other features are artist conceptions. Hardscape, landscape, and other items shown may be decorator suggestions that are not included in the purchase price and availability may vary.
Stay informed with Livabl updates on new community details and available inventory.