






































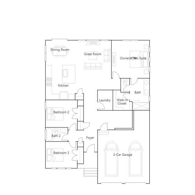
This single-story home features a contemporary open layout in the Great Room, kitchen and dining room. Near the foyer are two comfortable bedrooms, while the owners suite is tucked away in the back of the home for maximum privacy. For additional shared living space, an optional second level features a cozy loft, fourth bedroom and third bathroom. A two-bay garage completes the home.
Stay informed with Livabl updates on new community details and available inventory.