













































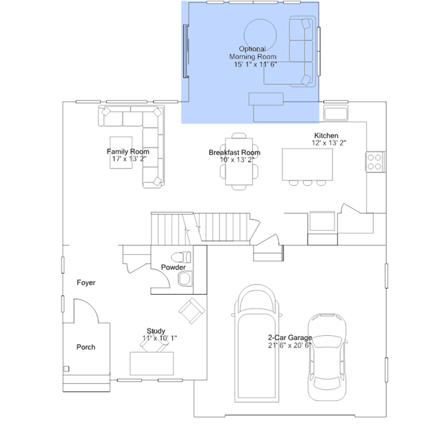
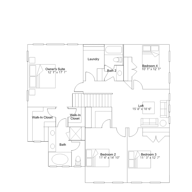
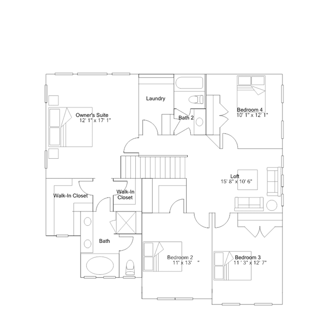
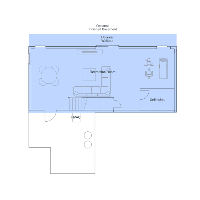
This spacious two-story home features a bright study near the foyer and an open living area that extends to the backyard. Upstairs is a loft surrounded by four bedrooms, including the owners suite with a spa-inspired bathroom. This home also offers a number of personalization options, such as a fifth bedroom and full bathroom in the optional finished lower level.