




































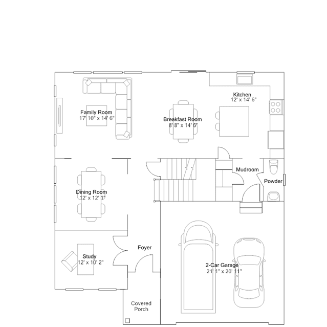
This two-story home features a convenient study area, formal dining room, mudroom and an open living space that extends to the backyard. For outdoor living, the home offers an optional deck connected to the breakfast area. There is a total of four bedrooms, each with its own closet space. A basement is ready to be transformed, featuring an optional recreation room and fifth bedroom for extra living space.