




















































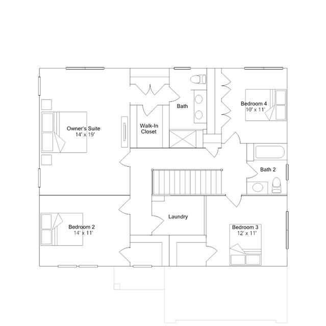
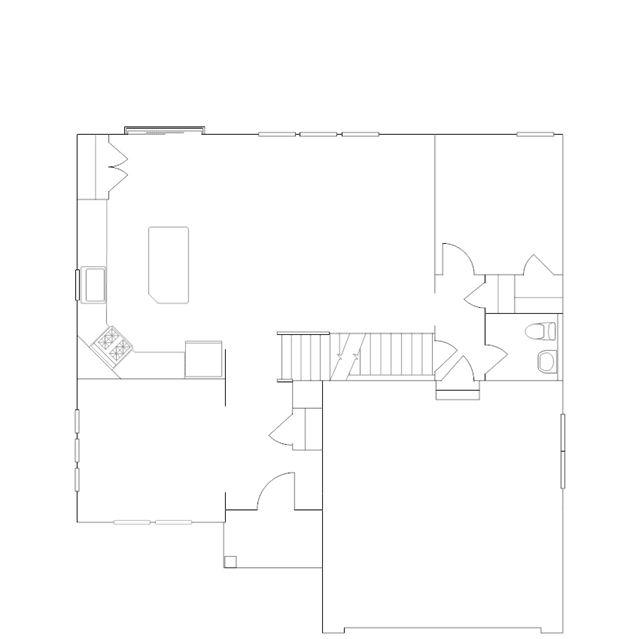
This spacious two-story home features an open concept living area with quick access to the backyard. The first floor boasts a formal dining room near the foyer, while a study is tucked away in the back. Upstairs are all four bedrooms, including the lavish owners suite. This home also offers a number of personalization options with finished lower-level add-ons, such as a fifth bedroom and recreation room.