





























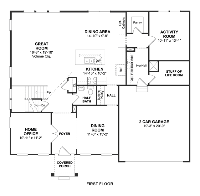
Private home office off foyer, perfect for working from home. Spacious great room with triple windows & optional fireplace. Striking kitchen with large center island and pantry. Versatile activity room for kids to play. Luxurious owner's suite with walk-in closet. Relaxing owner's spa bath with split vanities. Optional basement rec room available for additional living space.