























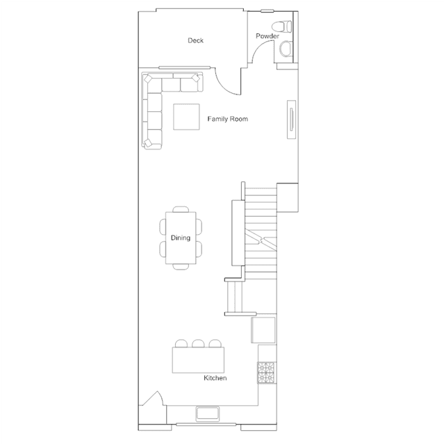
This spacious three-story residence includes a two-bay garage on the first level, along with a separate bedroom suite perfect for guests. The second floor features an open design among the dining room, family room and kitchen, which access a deck for outdoor opportunities. Upstairs is the owners suite with two walk-in closets and an additional suite.