




















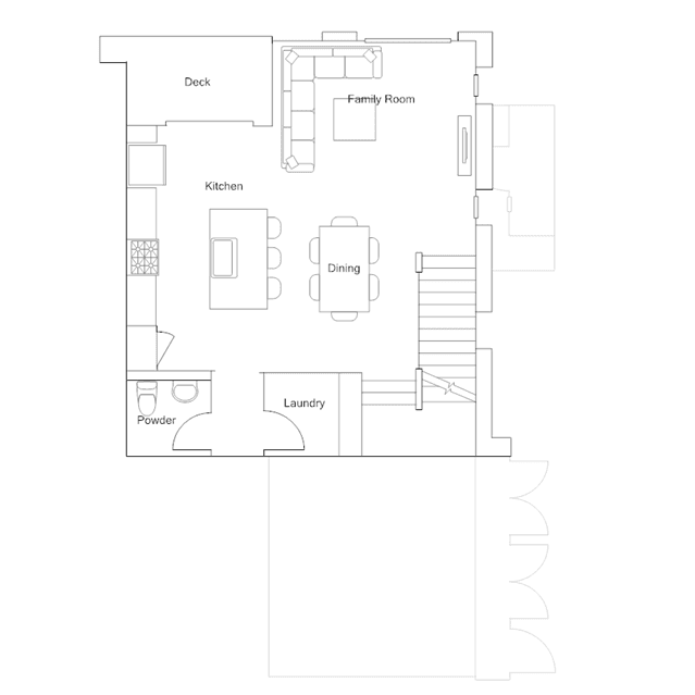
Featured on the first floor of this three-story home is a two-bay tandem garage for added storage, while the second floor sports an expansive open area among the kitchen, dining room and family room with deck access for indoor-outdoor living. The third level features a luxe owners suite and an additional bedroom.