


































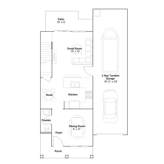
This new two-story home features a modern design with an inviting open-concept layout on the first floor consisting of the kitchen, living and dining areas, and a formal dining room is conveniently located off the foyer. Three bedrooms can be found on the second floor, including the owners suite with an en-suite bathroom and walk-in closet.
Stay informed with Livabl updates on new community details and available inventory.