






















































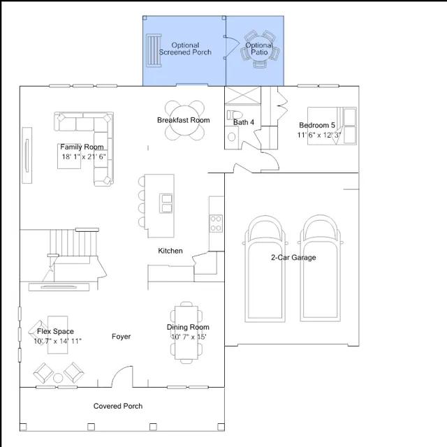
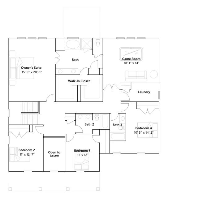
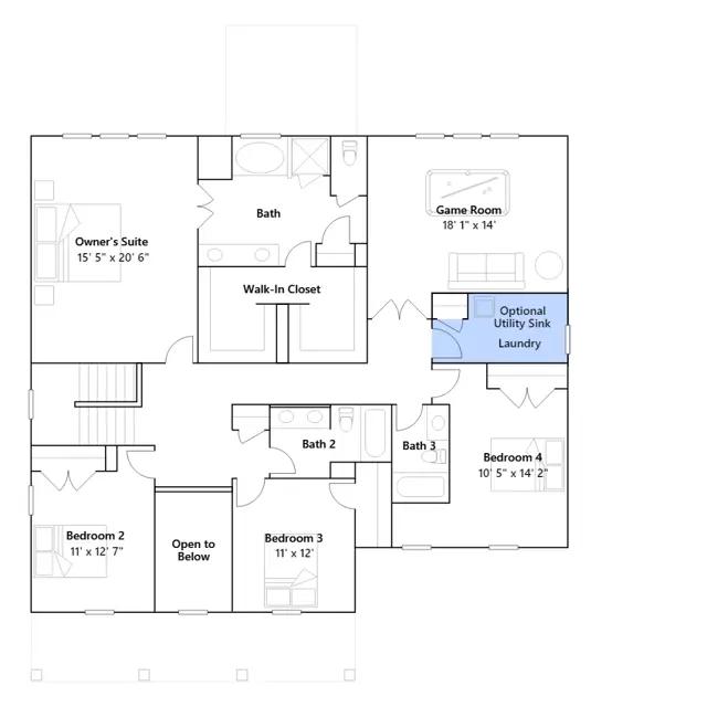
This two-story home is the largest plan in the collection. Off the foyer is a spacious flex room and formal dining room, followed by an open main living area and a patio for outdoor living. Ideal for overnight guests is a first-floor bedroom. Upstairs is the luxurious owners suite, three secondary bedrooms and a generous game room with endless possibilities.
Stay informed with Livabl updates on new community details and available inventory.