







































































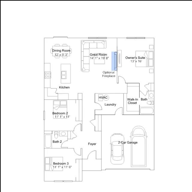
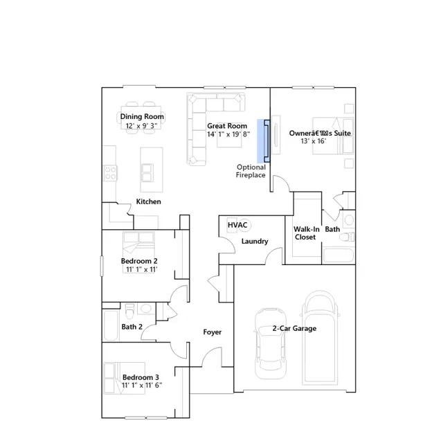
This new single-story home has a smart layout that allows for gracious living. Down the foyer is an open-concept Great Room ideal for entertainment, which seamlessly melds into a well-equipped kitchen and a dining room for memorable meals. In a private corner is the spacious owners suite with a full bathroom and a walk-in closet, while at the opposite end are two secondary bedrooms and a two-car garage.
Stay informed with Livabl updates on new community details and available inventory.