






















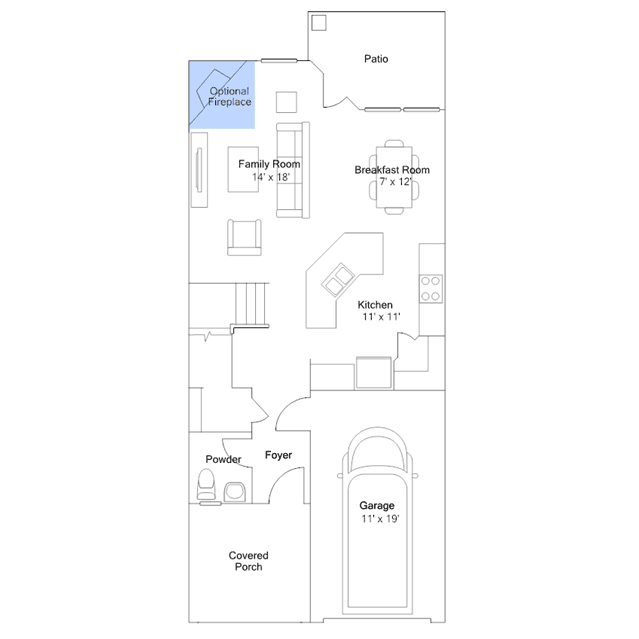
This new two-story townhome is designed for comfort and convenience. The first floor features an open-plan layout among the family room, modern kitchen and breakfast nook. A covered front porch and back patio provide plenty of space to enjoy the outdoors. Upstairs are three bedrooms including a luxe owners suite.