






































































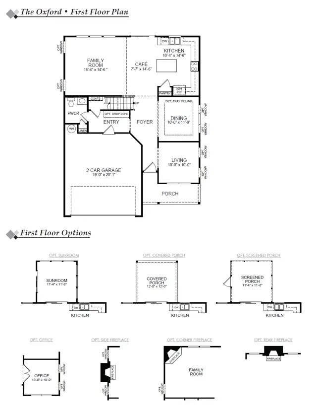
The Oxford is a two story three bedroom two and a half bath home with a formal living room formal dining room kitchen with island and spacious family room. The second floor features all three bedrooms a loft area an unfinished storage area and a laundry room. Options available to personalize this home include an office with French doors a covered porch screen porch or sunroom an optional fourth bedroom finished storage primary bath options and an optional third floor with bonus room and full bath or bonus room full bath and loft area.
Stay informed with Livabl updates on new community details and available inventory.