






















































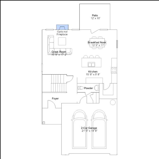
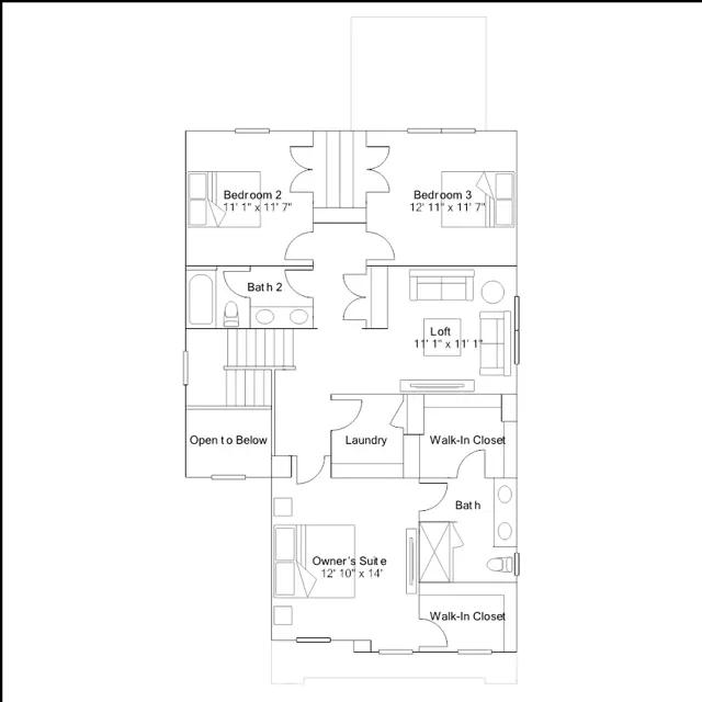
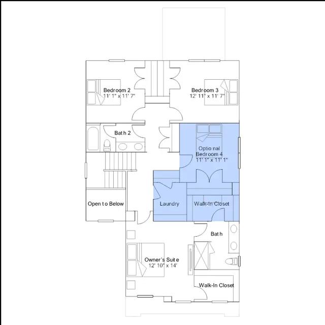
At the heart of this new two-story home is a spacious, open-concept floorplan designed for shared living and entertaining. It includes a sprawling Great Room, a fully equipped kitchen with a center island and an adjacent breakfast nook, which extends further out into a desirable patio. Residing on the top floor is a versatile loft surrounded by two secondary bedrooms and a tranquil owners suite.
Stay informed with Livabl updates on new community details and available inventory.