
























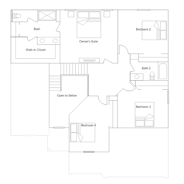
This new two-story home features an expansive design with a convenient three-car garage. The first floor offers a formal living and dining room that complement the casual family room and breakfast room, plus a gourmet kitchen and a private study. Upstairs are three secondary bedrooms and an owners suite with a generously sized walk-in closet and luxe bathroom.