

































































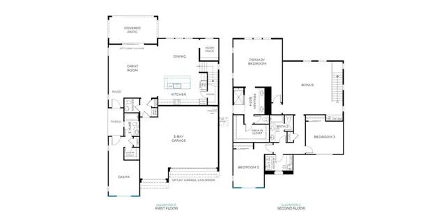
This stunning two-story home accommodates 4-5 spacious bedrooms, 3.5 to 4.5 luxurious bathrooms, and a generous 3-car garage, ensuring ample space for your family and vehicles. Step inside to discover an expansive great room and kitchen with a dedicated Work+ Space, perfect for remote work or a home office, allowing you to achieve the ideal work-life balance. Additionally, a versatile Bonus Room offers endless possibilities ? transform it into a playroom, media center, or gym to suit your lifestyle needs. Indulge in outdoor living with a charming covered patio, ideal for relaxing evenings or entertaining guests year-round. Whether you're enjoying a peaceful moment or hosting gatherings, this space offers the perfect blend of comfort and style. With its thoughtful design, ample amenities, and prime location, this home is a rare find that combines functionality...
Stay informed with Livabl updates on new community details and available inventory.