





































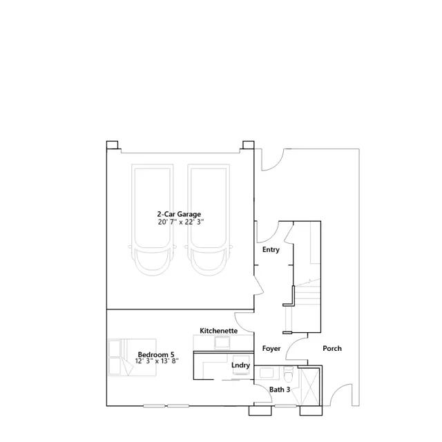
This new single-story home offers ample space to live and grow. On the first floor, a spacious bedroom with a kitchenette, en-suite bathroom and laundry provides the perfect spot for a guest suite. The luxurious owners suite, complete with a private bathroom and walk-in closet, shares the second floor with an open-concept floorplan shared between the kitchen, living and dining areas. Three additional bedrooms comprise the third level.
Stay informed with Livabl updates on new community details and available inventory.