




































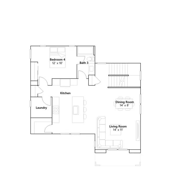
This new three-story home features a bedroom with an en-suite bathroom on the first level. The main living area is located on the second floor among an open-concept floorplan shared between the kitchen, living and dining areas, near the luxurious owners suite with a spa-inspired bathroom and walk-in closet. On the third floor are two additional bedrooms and a versatile loft providing a convenient shared living area.
Stay informed with Livabl updates on new community details and available inventory.