

































































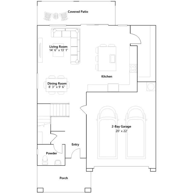
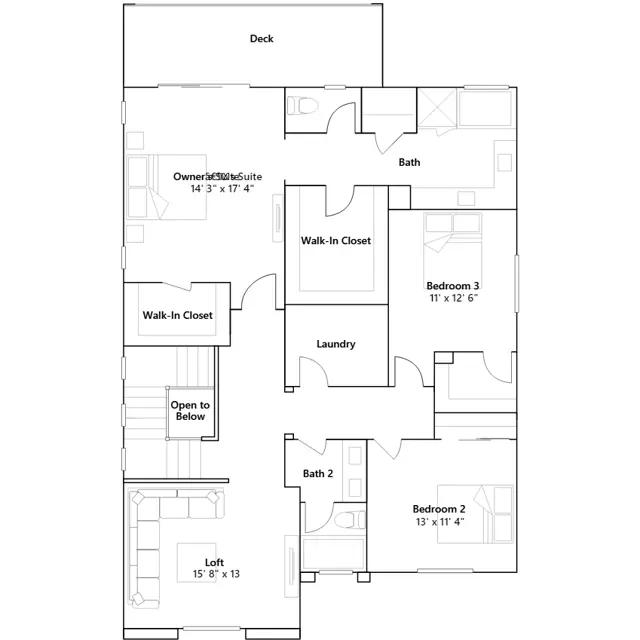
The first floor of this new two-story home is host to a spacious and flexible open-concept floorplan with convenient access to a covered patio for seamless entertaining and multitasking. All three bedrooms are located upstairs surrounding a versatile loft, including the lavish owners suite with a spa-inspired bathroom and walk-in closet.
Stay informed with Livabl updates on new community details and available inventory.