






















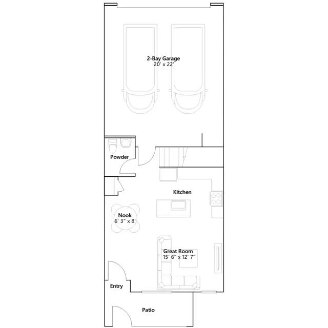
The first floor of this new two-story townhome is host to an inviting open-concept layout that blends the kitchen, dining nook and Great Room for seamless entertaining and multitasking. Two bedrooms plus a luxe owners suite are located on the second floor. At the back of the home on the first level is a spacious two-bay garage.
Stay informed with Livabl updates on new community details and available inventory.