


























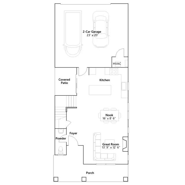
The first floor of this two-story home showcases an open layout that features a Great Room with a fireplace, a nook and a modern kitchen with a patio attached. Upstairs are three bedrooms ideal for families or hobby spaces and the owners suite with a full bathroom.
Stay informed with Livabl updates on new community details and available inventory.