















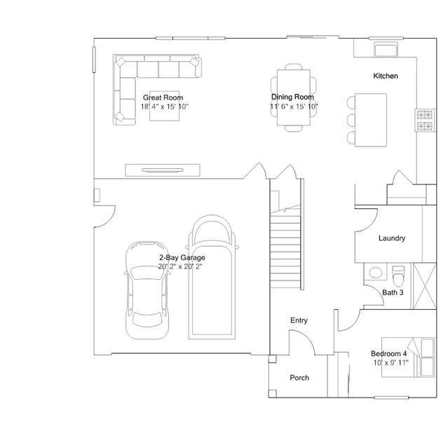
This two-story home features a spacious open floorplan where the Great Room, dining room and kitchen share a footprint. A versatile bedroom off the entry is great for overnight guests or a home office. Upstairs is a loft and three more bedrooms, including the luxe owners suite complete with convenient dual walk-in closets and a bathroom.