
















































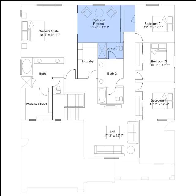
This two-story home features Lennars signature Next Gen suite complete with a separate entrance, living space, kitchenette, bathroom, laundry and a bedroom with a retreat. In the main home, the first level offers open concept living while a loft and five bedrooms occupy the second floor.