































Get additional information including price lists and floor plans.



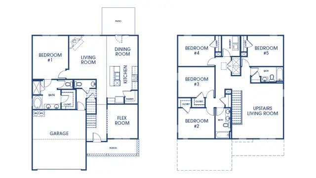
The Elle floorplan at Twin Lakes offers 5 bedrooms, 3 full bathrooms and a convenient powder room in a two-story home covering 2,721 square feet. The 2-car garage ensures plenty of space for vehicles and extra storage. If a private bedroom suite on the main level is on your wish list, this is the design for you. The adjacent bath features a shower, separate garden tub and dual vanities. This plan also offers an open concept family room that flows seamlessly into a casual dining area. A well-appointed kitchen includes contemporary cabinets, stainless steel appliances and an island with bar top seating. A flex room on the main offers a versatile space that could be formal dining, formal living or a dedicated home office. Upstairs features four generous secondary bedrooms with ample closet space, plus an expansive airy loft, ideal for gaming with friends, movie n...
Stay informed with Livabl updates on new community details and available inventory.