
























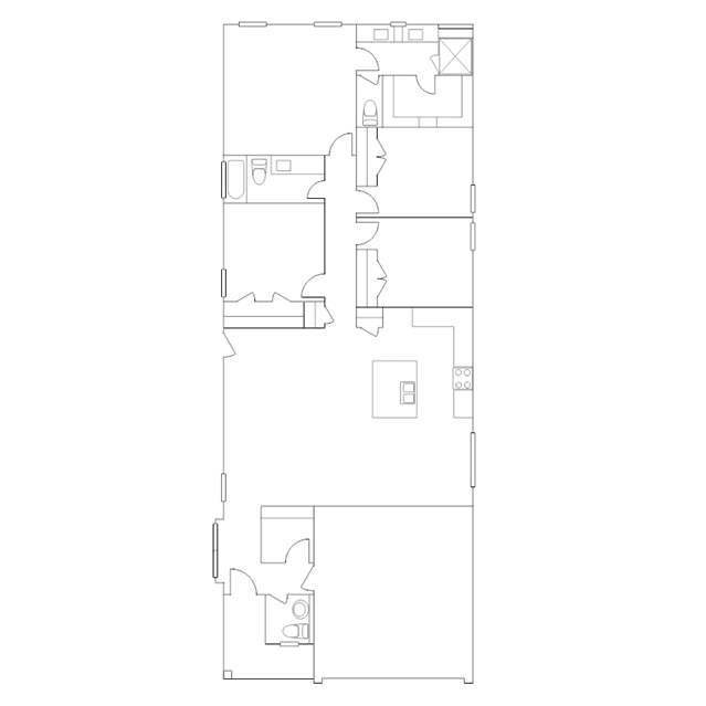
This single-story home has a layout that is perfect for growing families with a living area in the front and bedrooms in the back. The front door leads into the open concept living room, which flows seamlessly into the dining room and kitchen. In the back of the home are four bedrooms, including the owners suite which has a private bathroom and large walk-in closet.