






































Images coming soon
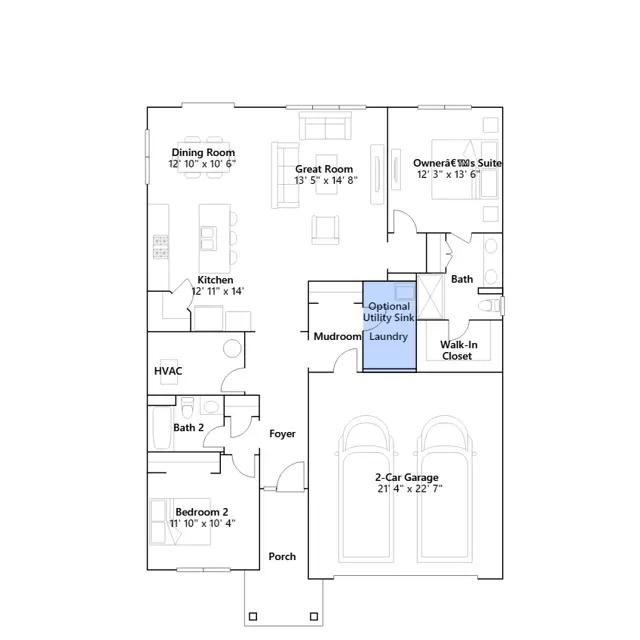
This new home is laid out on a single floor for maximum convenience. The heart of the home showcases an open design among a Great Room made for get-togethers, a dining room for memorable meals and a spacious kitchen for busy cooks. A secondary bedroom is at the front of the home, while the lavish owners suite is at the back with a private attached bathroom and walk-in closet.
Stay informed with Livabl updates on new community details and available inventory.