

































Get additional information including price lists and floor plans.
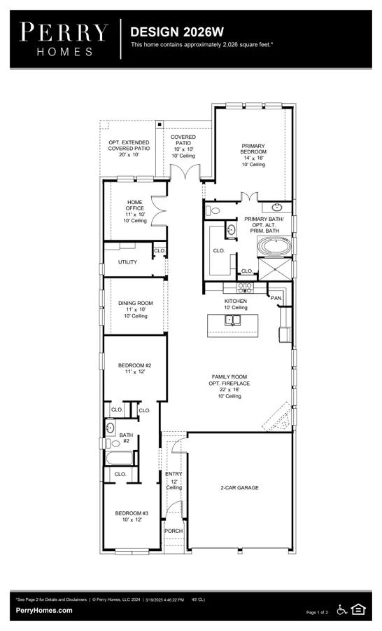
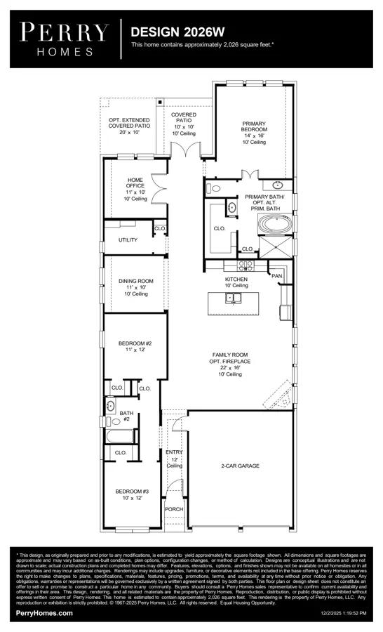
Entry leads to open family room with wall of windows. Kitchen features corner walk-in pantry and generous island with built-in seating space. Dining area set just across from kitchen. Primary suite includes bedroom with wall of windows. Double doors lead to primary bath with dual vanities, corner garden tub, separate glass-enclosed shower and walk-in closet. Home office with French doors set at back entrance. Secondary bedrooms feature walk-in closets. Covered backyard patio. Two-car garage. Representative Images. Features and specifications may vary by community.
Stay informed with Livabl updates on new community details and available inventory.