

















































































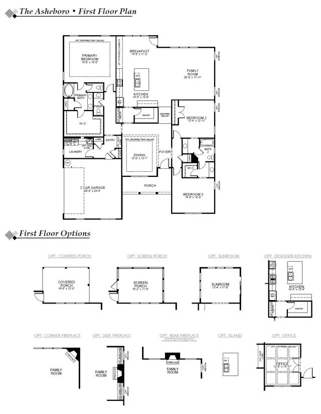
The Asheboro is a three bedroom two and a half bath home with a side load garage first floor primary suite formal dining room spacious family room and kitchen with island and walk in pantry plus a Jack and Jill bath between bedrooms two and three. Options to personalize this home include an office with French doors sunroom covered porch or screen porch butler s pantry drop zone area and upstairs options including a loft bedroom and full bath.
Stay informed with Livabl updates on new community details and available inventory.