


































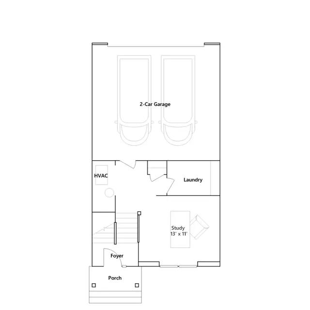
This new three-story townhome is a family-friendly haven with a lower-level study to add versatility. The first floor features a modern kitchen with a center island, a dining room and a spacious living room with sliding-glass doors opening out to the deck. Upstairs are two secondary bedrooms and an owners suite with a generously sized walk-in closet.
Stay informed with Livabl updates on new community details and available inventory.