












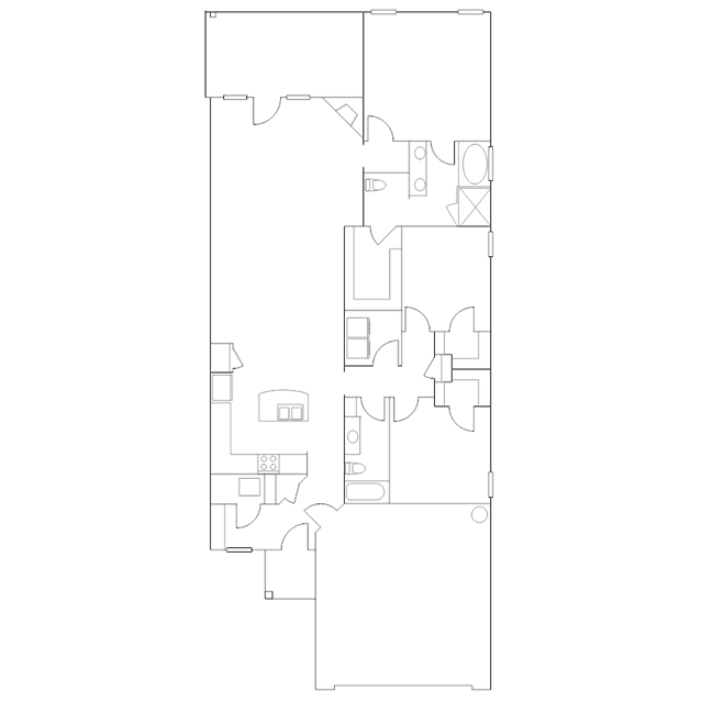
This single-story home provides low-maintenance living with plenty of room to grow. Upon entry is a cohesive open layout, showcasing a well-equipped kitchen that overlooks the dining room and Great Room with porch access in an excellent set-up for seamless living and entertaining. On the opposite side of the home are two secondary bedrooms and the privately situated owners suite with a spa-style bathroom. At the front is a two-bay garage for versatile needs.