




















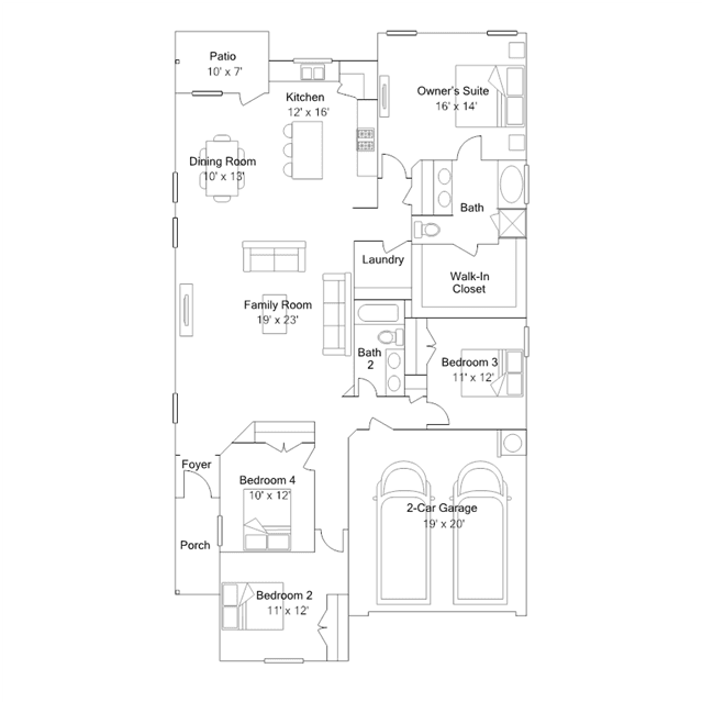
This single-story home is perfect for families with three bedrooms and a full bathroom in the front of the home and an owners suite in the back. The open living area features a modern kitchen, dining area and family room with ample space for furniture. Plus, there is a small covered patio in the back.
Stay informed with Livabl updates on new community details and available inventory.