




















































































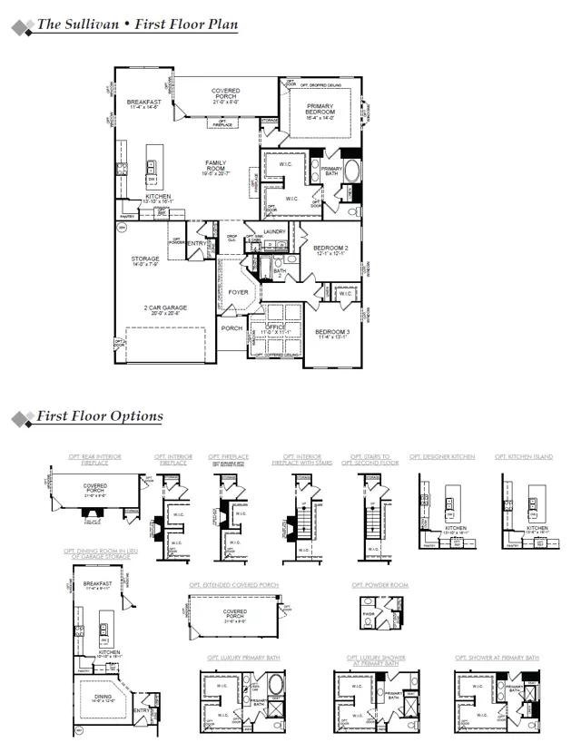
The Sullivan is a three bedroom two bath ranch style home with a dedicated home office a spacious family room a kitchen with an island and pantry a separate breakfast area a covered rear porch a first floor primary bedroom and a large garage storage area.Options available to personalize this home include a first floor powder room a formal dining room instead of the garage storage area several primary bath options and an optional second floor with a loft bedroom and an additional bath.
Stay informed with Livabl updates on new community details and available inventory.