



















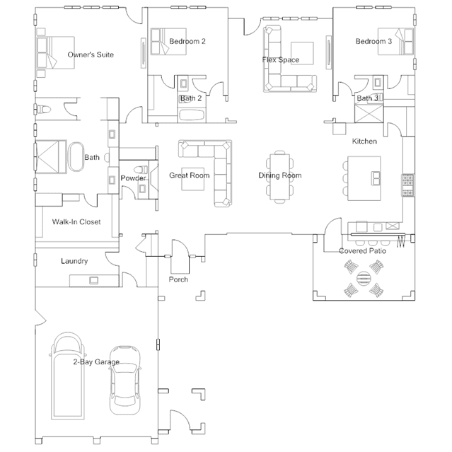
This single-level home features a spacious open floorplan that promotes effortless flow between the Great Room, kitchen, dining room and flex space, offering easy access to a covered patio. The luxe owners suite is host to a restful bedroom, a spa-inspired bathroom and spacious walk-in closet. Two secondary bedrooms each include private attached bathrooms.